ИИ для подбора мебели по архитектурным чертежам и каталогам
Март 2026

ИИ для подбора мебели по архитектурным чертежам и каталогам

ИИ для подбора мебели по архитектурным чертежам и каталогам
Направления
Технологии
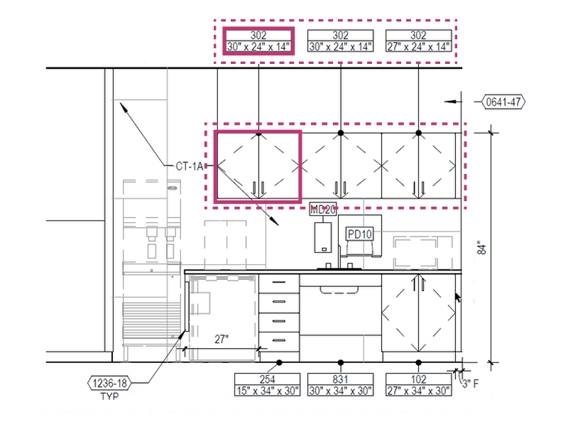
При помощи ИИ автоматизировали процесс подбора мебели из каталога заказчика под схематический чертеж конкретного помещения.

Бизнес-логика

Клиент — поставщик мебели для строительных проектов. В рамках тендеров и конкурсов он получает архитектурные чертежи, где указаны помещения и размещение мебели, например, шкафов, стеллажей и других элементов. Это 2D схематичные чертежи.

Чтобы подать коммерческое предложение, необходимо:

  • проанализировать чертежи,
  • определить, какая мебель требуется,
  • подобрать подходящие позиции из каталога,
  • сформировать смету.

Ранее этот процесс выполнялся вручную: специалисты изучали чертежи, извлекали размеры и параметры мебели, а затем  сопоставляли их с каталогом. Это занимало значительное время и замедляло участие в тендерах.

Задача проекта — автоматизировать этот процесс с помощью ИИ: от разбора чертежа до подбора мебели из каталога.

Хотите заказать решение для обработки чертежей?

Напишите нам!
И мы разработаем решение для обработки ваших чертежей!

связаться с нами

Решение

Система обнаруживает мебель на чертеже и извлекает параметры объектов. Для этого используются модели компьютерного зрения и OCR, после чего LLM формирует формализованное описание каждого шкафа, включая размеры и конфигурацию (количество дверей, полок, ручек и других элементов).

Далее объекты группируются по типам с помощью кластеризации: для каждого найденного шкафа вычисляются embedding-векторы изображения, и близкие по структуре объекты объединяются в один тип мебели с вариациями размеров.

Весь каталог поставщика был преобразован в структурированный JSON-формат. Для каждой позиции каталога была сформирована текстовая конфигурация мебели (количество дверей, полок, секций и т.д.).

После этого подбор выполняется через комбинированное сравнение — семантическое сопоставление текстовых описаний и анализ визуального сходства объектов.

Архитектура решения

Система объединяет обработку изображений, текстовый анализ и семантическое сопоставление для автоматизации подбора мебели по архитектурным чертежам.

Анализ архитектурных чертежей
  • Детекция объектов мебели на изображении с помощью YOLO
  • Извлечение текстовых данных (размеров, подписей) через PaddleOCR
  • Дополнительная интерпретация с помощью LLM (Gemini)

На выходе формируется структурированное описание мебели в фиксированном формате (JSON), включая тип объекта, размеры и конфигурацию (количество дверей, полок и т.д.).

Кластеризация объектов
  • Группировка мебели по типам с помощью Agglomerative Clustering
  • Использование эмбеддингов изображений

Это позволяет объединять схожие объекты в группы и подбирать один тип мебели с вариациями вместо обработки каждой позиции отдельно.

Подготовка каталога

Изначально каталог представлял собой PDF с 3D-визуализациями без структурированных описаний.

  • Каталог преобразован в структурированный JSON
  • Для каждой позиции сформировано текстовое описание конфигурации (двери, полки, штанги и т.д.)
Сопоставление объектов мебели
  • Семантическое сравнение текстов (эмбеддинги)
  • Лексическое сравнение (N-grams)
  • Дополнительно — сравнение изображений (на ранних этапах)

Сопоставление выполняется на основе комбинированного анализа текстовых и визуальных признаков, что повышает точность подбора мебели из каталога.

Челленджи в разработке и их решения

Неточное извлечение параметров с чертежей

На первых этапах система некорректно определяла размеры и конфигурации мебели: LLM путалась в обозначениях, не всегда правильно интерпретировала, какие именно параметры важны (например, количество дверей или секций). Это напрямую влияло на качество дальнейшего подбора.

Чтобы решить проблему, команда переработала промпты и перешла на более точную модель от Gemini, а также ввела фиксированный формат описания объектов. Это позволило стандартизировать извлекаемые данные и снизить количество ошибок.

Сложность сопоставления с каталогом

Изначально каталог представлял собой большой PDF на более чем 300 страниц с 3D-визуализациями и минимальным текстовым описанием. LLM не справлялась с задачей прямого поиска подходящих позиций: слишком много пересечений было у объектов.

Мы приняли решение полностью преобразовать каталог в структурированный JSON. Для каждой позиции вручную сформировали описание конфигурации (двери, полки, штанги и другие параметры), что позволило перейти от неструктурированного поиска к более точному сопоставлению по признакам.

Большое количество похожих объектов на чертеже

На одном плане может быть много одинаковых или почти одинаковых шкафов, и обрабатывать их по отдельности неэффективно  это увеличивает время и создает дублирование при подборе.

Для решения задачи внедрили кластеризацию: объекты группируются по визуальному сходству с использованием эмбеддингов. В итоге система определяет группы одинаковых шкафов и подбирает для них один тип мебели с вариациями.

Неоднородность данных: текст + графика

Ключевая сложность проекта необходимость одновременно работать с графическими чертежами и текстовыми данными, которые часто неполные или неоднозначные. Часть информации присутствует только в виде изображений, а часть в виде подписей.

Это потребовало комбинирования нескольких подходов: CV-моделей для детекции объектов, OCR для извлечения текста и LLM для интерпретации. Дополнительно задачу разбили на этапы, чтобы последовательно обрабатывать и уточнять данные.

Ограничения LLM при работе со сложными объектами

При попытке "в лоб" сопоставлять объекты с каталогом через LLM модель часто ошибалась — особенно в случаях с похожими конфигурациями или нестандартными решениями.

В итоге подход был пересмотрен: вместо полного доверия LLM мы внедрили гибридную схему, где используется комбинация семантического (эмбеддинги) и лексического (N-grams) сравнения. Это позволило сделать процесс подбора более устойчивым и контролируемым.

Результаты

Мы разработали прототип системы автоматического подбора мебели по архитектурным чертежам.

Автоматизированы ключевые этапы:

  • извлечение объектов с чертежей,
  • структурирование спецификаций,
  • сопоставление с каталогом.

Реализован переход от неструктурированного PDF-каталога к формализованной базе данных. Уже на уровне прототипа существенно ускорен процесс подготовки смет. Далее мы будем работать над автоматическим формированием смет.

Проект находится в стадии активной оптимизации: основное внимание уделяется повышению точности сопоставления и улучшению качества извлечения параметров.

Попробуйте наше Демо!

Мы разработали сервис, в котором можно протестировать, как обученная нами AI-модель распознаёт ваши рабочие чертежи.

Просто заполните форму

другие наши проекты

Система по распознаванию чертежей для бюро строительной экспертизы

Система по распознаванию чертежей для бюро строительной экспертизы

SaaS-сервис с ИИ для создания земельных планов на основе данных со спутника

SaaS-сервис с ИИ для создания земельных планов на основе данных со спутника

Извлечение данных из старых строительных чертежей при помощи ИИ

Извлечение данных из старых строительных чертежей при помощи ИИ

Анализ спутниковых снимков для американского агентства недвижимости

Анализ спутниковых снимков для американского агентства недвижимости

Сервис для обнаружения лесных пожаров

Сервис для обнаружения лесных пожаров

Как ИИ помогает анализировать строительные чертежи

Как ИИ помогает анализировать строительные чертежи

Как ИИ извлекает размеры и допуски из инженерных чертежей

Как ИИ извлекает размеры и допуски из инженерных чертежей

Давайте найдем решение для вашего бизнеса!

Давайте найдем решение для вашего бизнеса!

Пожалуйста, заполните 'Имя'
Пожалуйста, заполните 'Телефон'
Пожалуйста, заполните 'Емейл'
Пожалуйста, заполните 'Компания'
Пожалуйста, заполните 'Сообщение'

Пожалуйста, заполните 'Имя и фамилия'
Пожалуйста, заполните 'Телефон'
Пожалуйста, заполните 'Емейл'
Выберите файл
Пожалуйста, выберите файл 'Резюме'
Выберите файл
Пожалуйста, прикрепите файл 'Код / ТЗ'